Zurück nach Oben

Wohnquartier Hennigsdorfer Straße, Berlin Heiligensee

Städtebaulicher Wettbewerb, 2018 - 1. Preis
Leitidee

Städtebauliche und freiräumliche Entwicklung eines Wohnquartiers mit mind. 600 WE unter Berücksichtigung der in der direkten Nachbarschaft vorhandenen und schützenswerten Biotope. Die ca. 8,5 ha große, bisher gewerblich genutzte Fläche (Tetra Pak, Underberg, ALDI) befindet sich an der Landesgrenze Berlins, Bezirk Reinickendorf, im Ortsteil Heiligensee.

Erschließung und Vernetzung

Ziel ist der Bau eines zukunftsweisenden Wohnquartiers, das in innovativer und wirtschaftlicher Form neuen Wohn- und Lebensraum in Einklang mit den angrenzenden hochwertigen Naturräumen und den Ortsteilstrukturen von Heiligensee schafft. Die Planung als verkehrsarmes Quartier und die Integration eines neuen mehrfachgenutzten ALDI-Standortes mit Wohnen und Dienstleistungen sind wichtige Ziele.

Das entwickelte städtebaulich-freiraumplanerische Konzept sieht die Verzahnung des neuen Wohnquartiers mit der prägenden Landschaft der Umgebung vor.

Durch die freistehende Anordnung der Mehrfamilienhäuser  durchdringt der Naturraum das Quartier, es entstehen Blick- und Wegebeziehungen zu den Wald- ,Biotop- und Wasserflächen.

Das differenzierte Angebot an Wohnformen wird durch die am Quartiersplatz angeordneten Gemeinbedarfseinrichtungen, wohnbezogene Dienstleistungen und dem Supermarkt ergänzt.

Freiraumstruktur
Bebauungstypologien

Ziel ist der Bau eines zukunftsweisenden Wohnquartiers, das in innovativer und wirtschaftlicher Form neuen Wohn- und Lebensraum in Einklang mit den angrenzenden hochwertigen Naturräumen und den Ortsteilstrukturen von Heiligensee schafft. Die Planung als verkehrsarmes Quartier und die Integration eines neuen mehrfachgenutzten ALDI-Standortes mit Wohnen und Dienstleistungen sind wichtige Ziele.

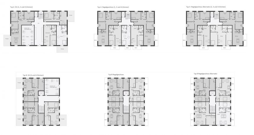
Grundrisse Typ A und Typ B, 1-4 Zimmer
Schnittansicht Höhenstaffelung Bestand - Neubau
Ansicht Quartiersmitte - Höhenversprung als Quartierspark

Projektdaten

Ort

Berlin, Reinickendorf, Ortsteil Heiligensee

Auftraggeber

Capital Bay GmbH, Berlin

Verfahren

Mehrfachbeauftragung, Städtebaulicher Wettbewerb 1. Preis

Zeitraum

Wettbewerb 2018, Überarbeitung Masterplan 2019, Bebauungsplanverfahren seit 2020 

Plangebietsgröße

8,5 ha

Team

Mehr Informationen